Ленинский проспект 30а, БЦ "Калининград Плаза" 2й этаж
Поиск
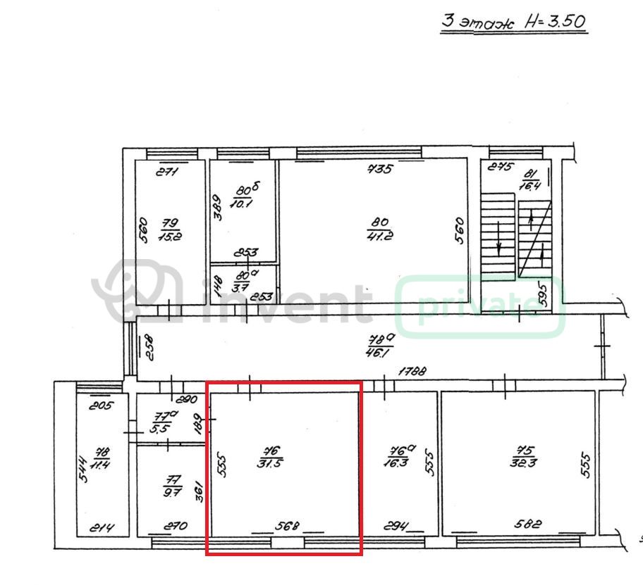
Офисное помещение, 31.50м²

Офисное помещение, 31.50м²

Площадь: 31.50м2
г. Калининград, Ленинградский, Геологическая ул, д. 1
20 475 /мес
загрузка карты...
Описание
Дата публикации: 01.10.2025 г. 109 просмотров

Сдаем офисное помещение расположенное в административном здании в центре города,
хорошая транспортная доступность ,
один кабинет, большие  окна, очень светлое,
в стоимость входят коммунальные платежи,
Площадь офиса 31,5 кв.м.

Расположение
Город г. Калининград
Район Ленинградский
Улица Геологическая ул
Характеристики
Площадь 31.50
Этаж 3
Отделка С ремонтом
Этажность 5
INTRUM_ID 229836
Тип операции аренда
Тип здания Административное здание
Арендные каникулы обсуждается
Наличие обеспечительного платежа 1
Обеспечительный платеж да, 1 месяц
Материал стен Железобетон
Вид парковка На улице
Отдельный вход 0
Тип недвижимости Офисное помещение
Соломонов Денис
Руководитель отдела коммерческой недвижимости
Или оставьте свой номер и специалист вам перезвонит
Я согласен на обработку персональных данных