Ленинский проспект 30а, БЦ "Калининград Плаза" 2й этаж
Поиск
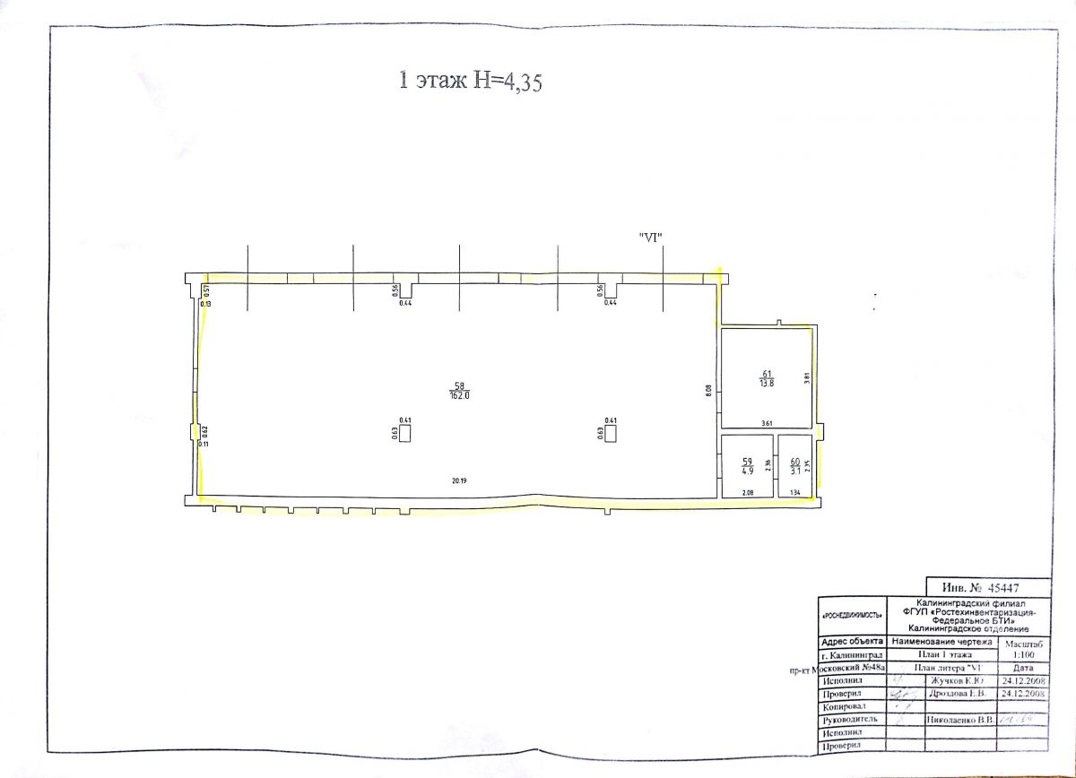
Торговое помещение, 264.50м²

Торговое помещение, 264.50м²

Площадь: 264.50м2
г. Калининград, Ленинградский, Московский пр-кт, д. 48а
230 000 /мес
загрузка карты...
Описание
Дата публикации: 11.11.2025 г. 13 просмотров

Сдается помещение на первом этаже административного здания на одной из главных магистралей города.

Большой пешеходный и автомобильный трафик. Рядом находятся :бизнес центр, медицинская клиника, отделение банка, гос.учреждения.
Объект состоит из пяти боксов  площадью 183,8 кв. метра и торговой части площадью 80,7 кв. метра (возможно использовать под кафе).

Перед зданием собственная парковка, так же рядом охраняемая многоуровневая парковка, и три больших открытых, бесплатных парковки.
Отличный вариант для ведения бизнеса.

Расположение
Город г. Калининград
Район Ленинградский
Улица Московский пр-кт
Характеристики
Площадь 264.50
Этаж 1
Отделка Офисная
Этажность 6
INTRUM_ID 230244
Тип операции аренда
Тип здания Административное здание
Арендные каникулы обсуждается
Наличие обеспечительного платежа 1
Обеспечительный платеж да, 1 месяц
Материал стен Железобетон
Вход С улицы
Вид парковка На улице
Отдельный вход 1
Тип недвижимости Торговое помещение
Бабаев Владимир
Специалист отдела коммерческой недвижимости
Или оставьте свой номер и специалист вам перезвонит
Я согласен на обработку персональных данных