Ленинский проспект 30а, БЦ "Калининград Плаза" 2й этаж
Поиск
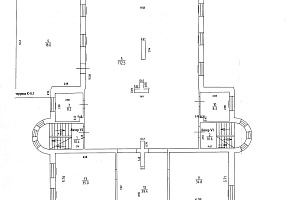
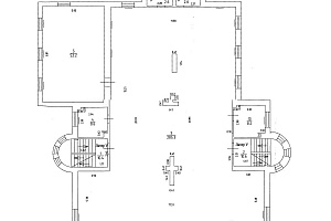
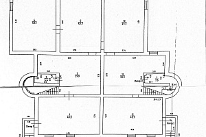
Здание, 1781.00м²

Здание, 1781.00м²

Площадь: 1781.00м2
г. Калининград, Центральный, Мира пр-кт, д. 71
409 630 000
загрузка карты...
Описание
Дата публикации: 08.04.2026 г. 66 просмотров

Предлагается на продажу четырехэтажное отдельно стоящее здание на проспекте  Мира!

Общая площадь - 1781 кв.метр.

Кабинетная система, собственный санузел на каждом этаже, подсобные помещения.

Высота потолков 3,20 метра. Электричество- 40 кВт.

Отдельный вход,  благоустроенная территория с местами для парковки.

Чистая внутренняя отделка.

Все центральные коммуникации, отопление автономное от собственной газовой котельной.

Подключены пожарная и охранная сигнализации, проведен высокоскоростной интернет.

Идеальная транспортная доступность в условиях города. Помещение находится на оживленной улице с постоянным потоком пешеходов и автотранспорта. Рядом остановки, магазины, торговые центры, предприятия, организации, учебные заведения.

 Превосходный вариант для ведения бизнеса!

Расположение
Город г. Калининград
Район Центральный
Улица Мира пр-кт
Характеристики
Площадь 1781.00
Этаж 1
Отделка С ремонтом
Этажность 4
INTRUM_ID 147380
Тип операции продажа
Вид использования земельного участка Земли поселений
Тип здания Административное здание
Арендные каникулы обсуждается
Наличие обеспечительного платежа 1
Обеспечительный платеж да, 1 месяц
Площадь участка (сот.) 9.80
Вид парковка Свободная парковка,Гостевая открытая
Тип недвижимости Здание
Риелтор
Руководитель отдела коммерческой недвижимости
Или оставьте свой номер и специалист вам перезвонит
Я согласен на обработку персональных данных