Ленинский проспект 30а, БЦ "Калининград Плаза" 2й этаж
Поиск
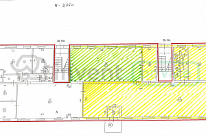
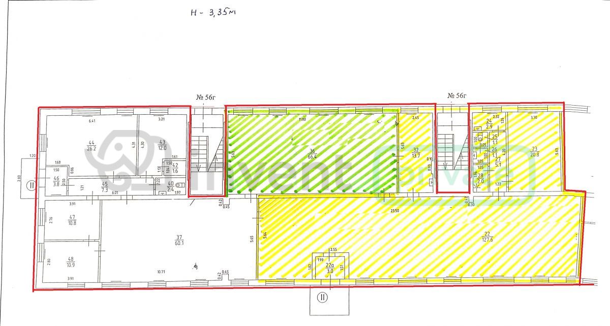
Торговое помещение, 380.00м²

Торговое помещение, 380.00м²

Площадь: 380.00м2
г. Калининград, Московский, Коммунистическая ул, д. 56 а
380 000 /мес
загрузка карты...
Описание
Дата публикации: 24.04.2026 г. 21 просмотр
Сдается в аренду помещение площадью 380 кв. м Помещение состоит из торговой площади и офисной части. Первый этаж, отдельный вход. Объект с ремонтом и мебелью ( офисная часть) Отличные подъездные пути, огромная парковка. Данное предложение можно использовать под магазин, выставочный зал, Офис. Единоразовое агентское вознаграждение для арендатора составляет всего 50% от суммы месячного арендного платежа.
Расположение
Город г. Калининград
Район Московский
Улица Коммунистическая ул
Характеристики
Площадь 380.00
Этаж 1
Отделка Косметический ремонт
Этажность 5
INTRUM_ID 231572
Тип операции аренда
Тип здания Жилой дом
Арендные каникулы 1 месяц
Наличие обеспечительного платежа 1
Обеспечительный платеж да, 1 месяц
Материал стен Панельный
Вход С улицы
Вид парковка Гостевая открытая
Отдельный вход 1
Тип недвижимости Торговое помещение
Риелтор
Специалист отдела коммерческой недвижимости
Или оставьте свой номер и специалист вам перезвонит
Я согласен на обработку персональных данных