Ленинский проспект 30а, БЦ "Калининград Плаза" 2й этаж
Поиск
3 комн. квартира, 68.20 м², 3/5 этаж

3 комн. квартира, 68.20 м², 3/5 этаж

Площадь: 68.20м2
г. Калининград, Ленинградский, Чувашская ул, д. 2
6 990 000
загрузка карты...
Описание
Дата публикации: 02.02.2026 г. 51 просмотр
Уютная 3‑комнатная квартира!

Откройте дверь в простор!

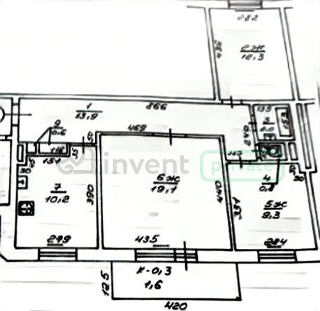
- Общая площадь: 68,2 м²
- Жилая площадь: 40,7 м² (3 изолированные комнаты: 19,1 м², 9,3 м², 12,3 м²)
- Кухня: 10,2 м² – место для семейных ужинов
- Состояние: требуется косметический ремонт в санузле и ванной – отличный шанс воплотить свои желания.
Паркет в жилых комнатах, стеклопакеты, тихие соседи.

* Закреплённое парковочное место за квартирой
- Тишина и уют района.
- Развитая инфраструктура: школы № 2, детсады, магазины («Пятёрочка», «Суперцены», «Альмак»), Сбербанк, церковь, парк для прогулок

Транспортная доступность: остановка в 3 минутах пешком, удобные выезды в любые районы города.

Ориентир: ул. Гагарина, ул.Куйбышева, ул.Краснодонская – спокойный спальный район с городской инфраструктурой

Юридическая чистота: квартира без долгов и обременений, все документы в порядке.

Звоните и приходите на просмотр – ваш новый дом ждёт вас!
Расположение
Город г. Калининград
Район Ленинградский
Улица Чувашская ул
Характеристики
Площадь 68.20
Кол-во комнат 3
Этаж 3
Этажность 5
Площадь кухни (м2) 10.20
INTRUM_ID 230811
Жилая площадь 40.70
Система отопления Теплоцентраль
Тип комнат Изолированные
Ремонт Требует ремонта
Материал стен Панельный
В ипотеку Нет
Балкон Есть
Санузел Раздельный
Риелтор
Специалист по работе с недвижимостью
Или оставьте свой номер и специалист вам перезвонит
Я согласен на обработку персональных данных