Ленинский проспект 30а, БЦ "Калининград Плаза" 2й этаж
Поиск
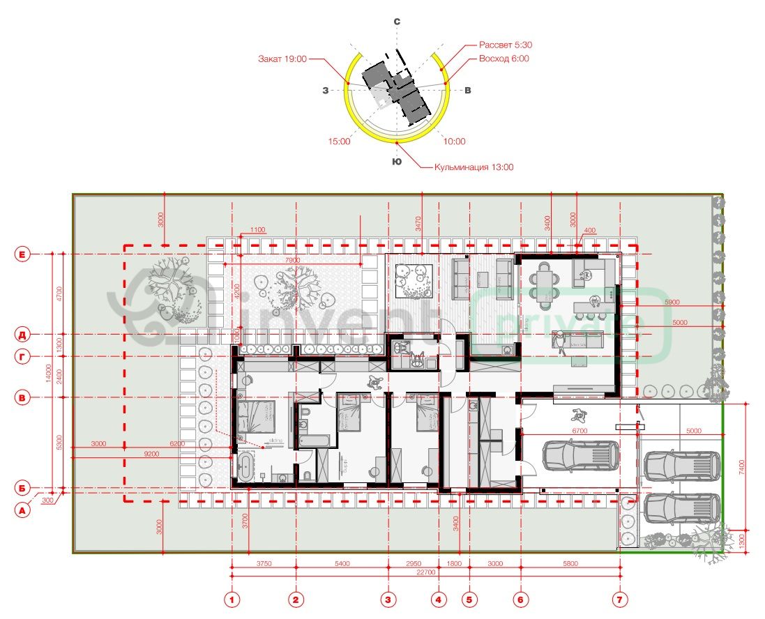
Дом, 204.60 м², 8.00 сот.

Дом, 204.60 м², 8.00 сот.

Площадь: 204.60м2
п. Малое Васильково, 1-й Речной пер
13 998 000
загрузка карты...
Описание
Дата публикации: 22.09.2025 г. 37 просмотров
«Безупречный образ жизни в престижном загородном доме»
Закрытый клубный посёлок | 204,5 м² | Участок 8 соток с ландшафтным дизайном.

Цена соответствует исключительному качеству.

Этот дом — воплощение современного комфорта и безукоризненного качества. Каждая деталь продумана для вашего удобства и долговечности:

✨Пространство для жизни:

✔️ 153,8 м² жилой площади + 39,1 м² террасы с высокими потолками (2,9–3,9 м)
✔️ Просторная кухня-столовая 42,9 м² — идеально для приёмов
✔️ Мастер-спальня 26,6 м² с гардеробной
✔️ 2 дополнительные спальни по 14,3 м² и 16,4 м²

✨Инженерные решения премиум-класса:

✔️ Отопление и водоснабжение (немецкая система KAN):
• Тёплый пол с гребенкой и смесительным узлом
• Котёл 12 кВт с Wi-Fi управлением
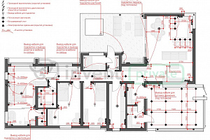
✔️ Электрика EATON:
• Продуманный распределительный щит без «паутины» проводов
• Мастер-выключатели, скрытая разводка под ТВ и интернет
• Готовые подключения для системы «умный дом»
✔️ Высокоскоростной интернет (кабель проложен, доступен ETAЙП)

✨Премиальные материалы и конструкции:

✔️ Окна KBE/Kömmerling 88 MD (7 камер), двери Alutech W72
✔️ Стены из газоблока 300 мм + утеплитель
✔️ Фундамент - бетонная подготовка "подложка", железобетонная лента, повторяющая контуры несущих стен, сплошная железобетонная плита под всем домом 10 см толщиной (ниже трамбованный песок)
✔️ Фальцевая кровля с подшивкой из лиственницы, двойной утеплитель и шумоизоляционная подложка (гасит звук дождя, града и ветра, в доме будет тихо даже в сильную непогоду)

✨Инфраструктура для комфорта:

✔️ Мангальная зона с вытяжкой - труба Ø250 мм (это хорошее решение для эффективного удаления дыма при приготовлении BBQ)
✔️ Готовые коммуникации для летней кухни на террасе
✔️ Сауна
✔️ Участок с ландшафтным дизайном, дренажем и ливневой системой
✔️ Скважина 75 м (расход на 2 дома), ЛОС
✔️ Видеонаблюдение (выводы под камеры по периметру)
✔️ Электрические ворота

 Закрытый посёлок на 150 домов — безопасность, приватность и элитное окружение.

 Готов ответить на все вопросы. Звоните!
Расположение
Населенный пункт п. Малое Васильково
Улица 1-й Речной пер
Характеристики
Тип недвижимости Дом
Тип дома
Количество комнат 3.00
Площадь 204.60
Жилая площадь 57.30
Площадь кухни 42.70
Этажность 1
Наличие строений на участке 0
Наличие подъездных путей 1
Наличие разрешения на строительство Да
Площадь участка 8.00
INTRUM_ID 229742
Район области Гурьевский р-н
Целевое назначение земли индивидуальное жилищное строительство
Ремонт Требует ремонта
Отопление Автономное отопление
Водоснабжение Скважина
Турчин Павел
Специалист по работе с недвижимостью
Или оставьте свой номер и специалист вам перезвонит
Я согласен на обработку персональных данных