Ленинский проспект 30а, БЦ "Калининград Плаза" 2й этаж
Поиск
Дом, 255.00 м², 11.40 сот.

Дом, 255.00 м², 11.40 сот.

Площадь: 255.00м2
г. Калининград, Центральный, Менделеева ул
45 000 000
загрузка карты...
Описание
Дата публикации: 08.04.2026 г. 27 просмотров
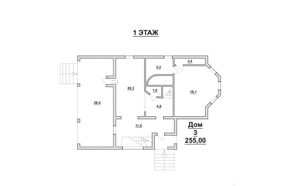
Продаётся просторный тёплый дом, площадь 255 кв.м в Центральном районе города, ориентир проспект Мира.Покупателю оставим всё. Продажа в связи с переездом в другой город. Дом с ремонтом ( 2 года). Два жилых этажа+цокольный этаж. 3 спальни, кухня-гостиная, терраса, 4 санузла,баня,бассейн. 2 входа, крытая парковка на 4 машины, пруд. Центральные коммуникации ( газ, свет, вода, канализация). Автономное газовое отопление. Участок 11.4 сотки, ИЖД, в собственности. Зона плодовых деревьев, парковая зона из хвойных и лиственных деревьев. 1 этаж: кухня-гостиная -20 кв.м, выход на террасу, комната 18 кв.м, санузел 2 этаж-2 спальни ( по 21 кв.м) с санузлами. Цоколь-бассейн, баня, душ, санузел, выход в сад, прачечная. Полы- паркет, плитка - подогрев полов везде. Электричество 3 фазы-220/380 в. Красивая качественная лестница из бука, витражи. окна на 3 стороны ( восток, запад, юг). Благоустроенный, с ландшафтом, огороженный участок. Хозблок. Документы к сделке готовы. В собственности более 5 лет. Остановка общественного транспорта в 3 минутах ходьбы от дома.Школа рядом. Звоните. № 87698
Расположение
Город г. Калининград
Район Центральный
Улица Менделеева ул
Характеристики
Тип недвижимости Дом
Тип дома
Количество комнат 3.00
Площадь 255.00
Жилая площадь 59.00
Площадь кухни 20.00
Год постройки/сдачи 2009
Этажность 2
Наличие строений на участке 1
Наличие подъездных путей 1
Наличие разрешения на строительство 1
Площадь участка 11.40
INTRUM_ID 87698
Материал перекрытий Железобетонные
Район области Не указан
Целевое назначение земли индивидуальное жилищное строительство
Ремонт С ремонтом
Санузел 2 санузла и более
Отопление Газ
Мощность Электроснабжения 380 кВт
Водоснабжение Центральное
Вид канализации Центральная
Риелтор
Специалист по работе с недвижимостью
Или оставьте свой номер и специалист вам перезвонит
Я согласен на обработку персональных данных