Ленинский проспект 30а, БЦ "Калининград Плаза" 2й этаж
Поиск
Дом, 247.00 м², 12.00 сот.

Дом, 247.00 м², 12.00 сот.

Площадь: 247.00м2
п. Дорожный, Брянская ул
16 300 000
загрузка карты...
Описание
Дата публикации: 08.04.2026 г. 47 просмотров
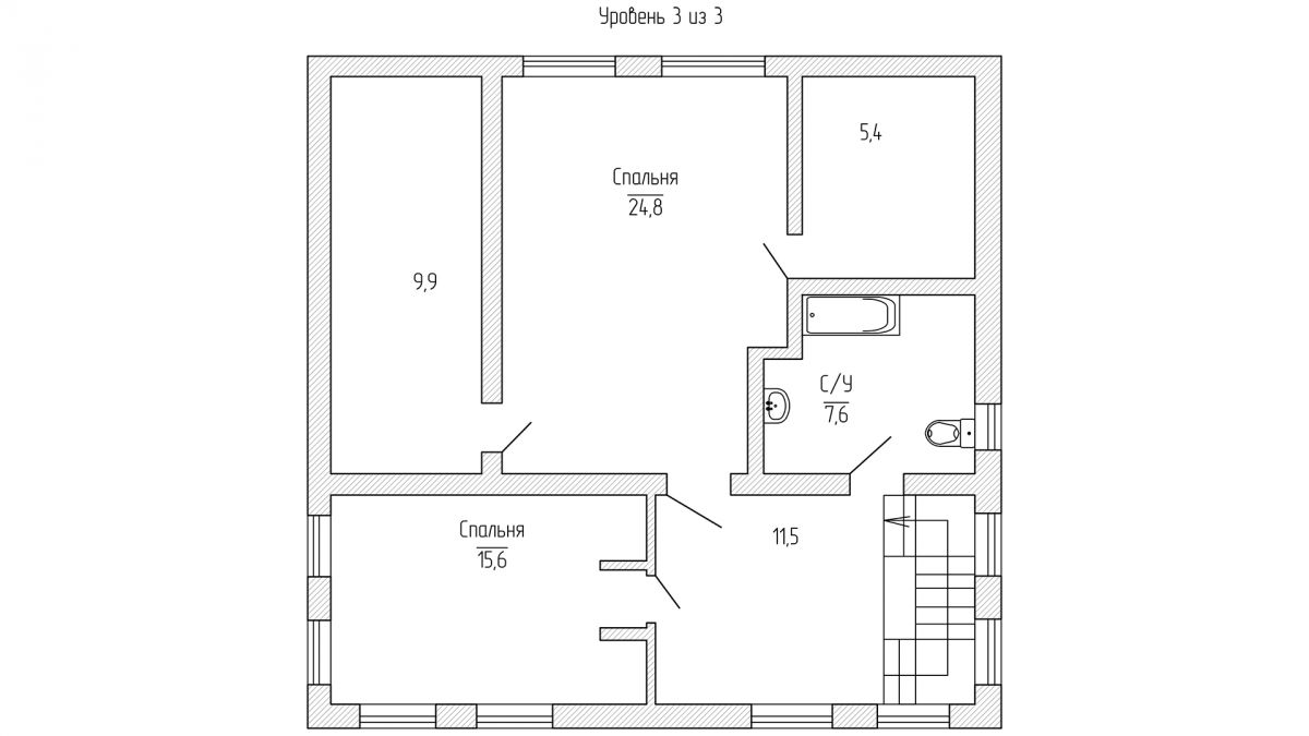
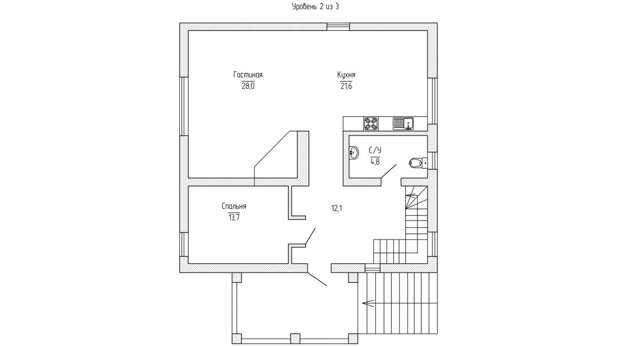
Продается дом в живописном месте рядом с речкой в поселке Дорожный, построен в 2005 году. В доме в цокольном этаже расположен гараж на две машины, помешения для хронения. На первом этаже кухня- гостинная с камином, кабинет, холл и с/уз. На 2-ом этаже просторная светлая спальня со своей гардеробной и с ванной комнатой, а также гостевая комната. Отопление автономное. Канализация септик, вода колодец. В доме произведен качественный ремонт, Участок благоустроенный с хвойными растениями перед домом и с плодовыми деревьями за домом. Окружение частный сектор. В пешей доступности развитая инфраструктура, детский сад, школа, магазины, остановка. Уютный дом для большой и дружной семьи. Номер объекта в базе 22259. Звоните! ____________________________________________________________ предоставляем полное юридическое сопровождение, безопасность сделок; работаем с военной ипотекой, материнским капиталом; гарантия быстрой и безопасной сделки
Расположение
Населенный пункт п. Дорожный
Улица Брянская ул
Характеристики
Тип недвижимости Дом
Тип дома
Количество комнат 5.00
Площадь 247.00
Жилая площадь 82.00
Площадь кухни 21.60
Этажность 2
Наличие строений на участке 0
Наличие подъездных путей 0
Наличие разрешения на строительство 0
Площадь участка 12.00
INTRUM_ID 22259
Материал перекрытий Железобетонные
Район области Гурьевский р-н
Целевое назначение земли индивидуальное жилищное строительство
Ремонт С ремонтом
Санузел 2 санузла
Отопление Автономное отопление
Мощность Электроснабжения 5 кВт
Водоснабжение Колодец
Вид канализации Септик
Риелтор
Специалист по работе с недвижимостью
Или оставьте свой номер и специалист вам перезвонит
Я согласен на обработку персональных данных