Ленинский проспект 30а, БЦ "Калининград Плаза" 2й этаж
Поиск
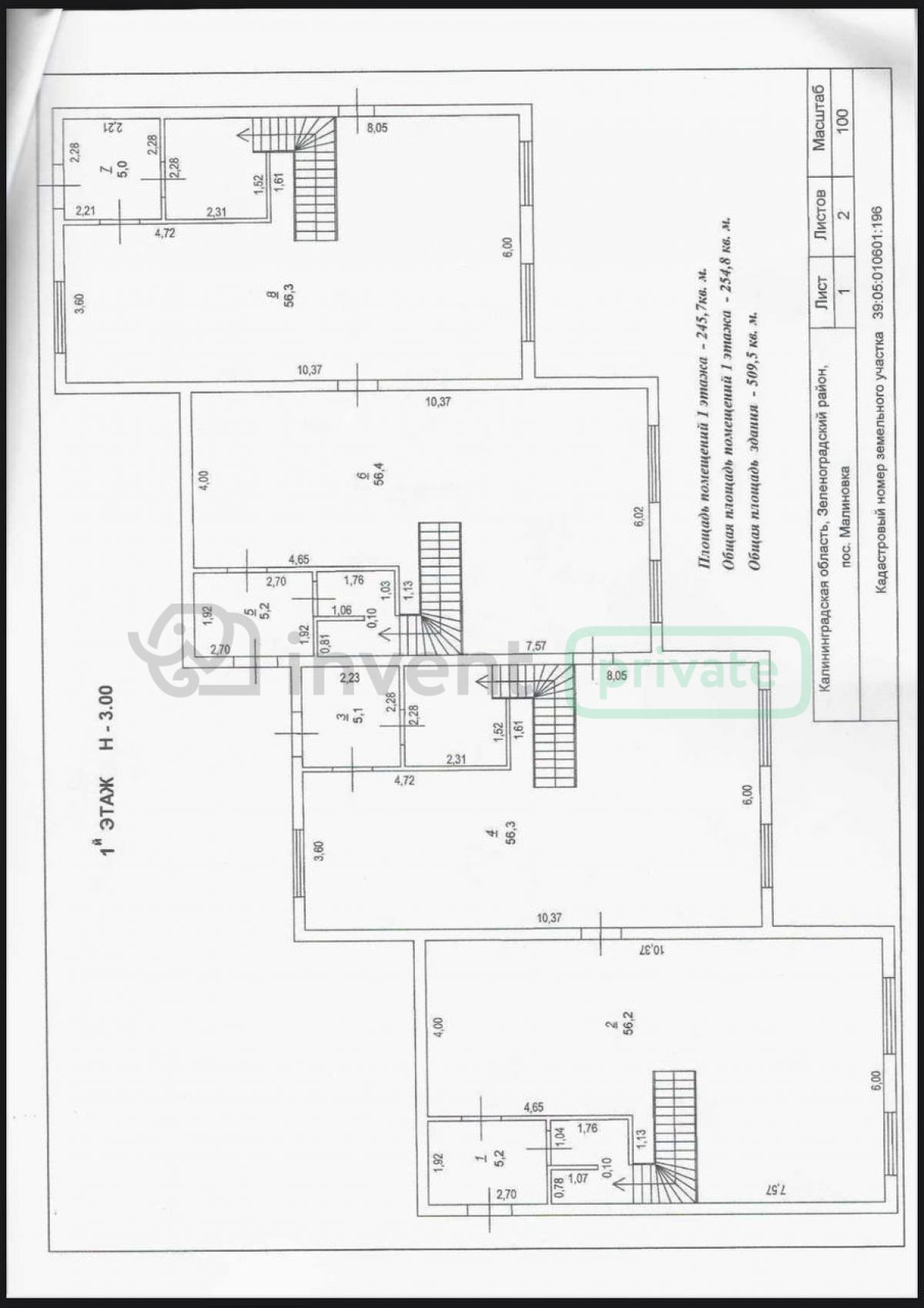
Таунхаус; Секция, 509.00 м², 9.00 сот.

Таунхаус; Секция, 509.00 м², 9.00 сот.

Площадь: 509.00м2
г. Зеленоградск, Воскресная ул
17 000 000
загрузка карты...
Описание
Дата публикации: 11.09.2025 г. 41 просмотр
✨ Ваш дом мечты на первой береговой линии Зеленоградска! ✨ Продаётся просторный трёхэтажный таунхаус площадью 509 м² – уникальное предложение для тех, кто ценит комфорт, стиль и жизнь у моря. Главное преимущество – первая береговая линия! Утренний кофе под шум волн, прогулки по набережной в двух шагах и невероятные закаты прямо из вашего окна. • Материал стен: Газосиликатный блок • Материал перекрытия: железобетон • Площадь: 509кв.м. • Площадь кухни: 56.4кв.м. • Жилая площадь: 222кв.м (+ мансарда ) • Высота потолков: 2.9м Кровля: Модульная металлочерепица Назначение Земли: ИЖС Участок: 9 сот. Коммуникации: •Канализация: центральная •Газовая магистраль проходит по границе участка. •Вода: центральное •Электричество: есть •Отопление: электрическое Цена указана за одну секцию при условии покупки всех четырех секций, возможно согласовать персональные условия под вас, спешите приобрести данный дом, по лучшей цене локации.
Расположение
Город г. Зеленоградск
Улица Воскресная ул
Характеристики
Тип недвижимости Таунхаус; Секция
Тип дома
Количество комнат 3.00
Площадь 509.00
Этажность 3
Площадь участка 9.00
INTRUM_ID 229615
Район области Зеленоградский р-н
Целевое назначение земли индивидуальное жилищное строительство
Ремонт Серый ключ
Отопление Электрокотел
Магомедов Рустам
Специалист по работе с недвижимостью
Или оставьте свой номер и специалист вам перезвонит
Я согласен на обработку персональных данных