Ленинский проспект 30а, БЦ "Калининград Плаза" 2й этаж
Поиск
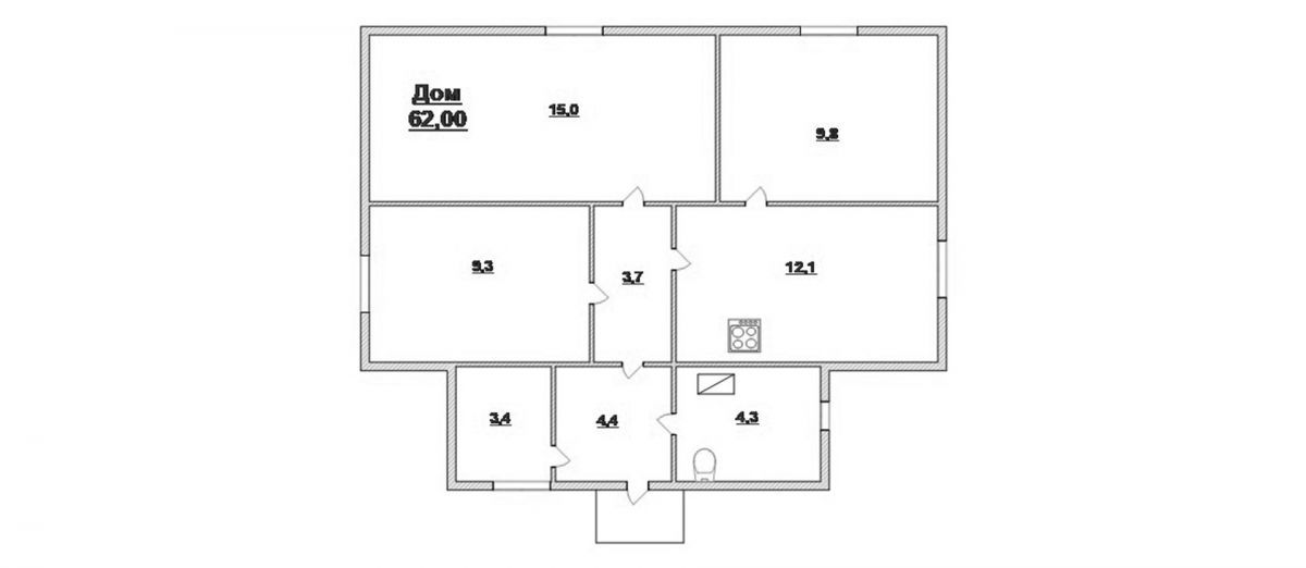
Дом, 62.00 м², 12.00 сот.

Дом, 62.00 м², 12.00 сот.

Площадь: 62.00м2
п. Тимофеево, Первомайская ул
1 600 000
загрузка карты...
Описание
Дата публикации: 18.02.2026 г. 35 просмотров
Продается дом п. Тимофеево, Краснознаменского района,
общей площадью 62кв.м.,
жилая площадь 34,1кв.м.(15, 9,8, 9,3)
кухня 12,1кв.м.,
автономное газовое отопление ,
с/у раздельный.
Земля 12 соток в собственности, сад, огород, теплица,
​​​​​​​ имеются хоз постройки, погреб, сараи.
​​​​​​​Дополнительно в аренде 6.5 соток земли, можно взять больше.
Расположение
Населенный пункт п. Тимофеево
Улица Первомайская ул
Характеристики
Тип недвижимости Дом
Тип дома
Количество комнат 3.00
Площадь 62.00
Жилая площадь 34.10
Площадь кухни 12.10
Этажность 1
Наличие строений на участке 1
Наличие подъездных путей 1
Площадь участка 12.00
INTRUM_ID 230971
Материал перекрытий Деревянные
Район области Краснознаменский р-н
Целевое назначение земли личное подсобное хозяйство (полевой или приусадебный участок)
Ремонт Требует ремонта
Кадастровый номер участка 39:06:030101:12
Санузел На улице
Отопление Автономное отопление
Водоснабжение Центральное
Вид канализации Центральная
Риелтор
Специалист по работе с недвижимостью
Или оставьте свой номер и специалист вам перезвонит
Я согласен на обработку персональных данных