Ленинский проспект 30а, БЦ "Калининград Плаза" 2й этаж
Поиск
Дом, 256.00 м², 9.50 сот.

Дом, 256.00 м², 9.50 сот.

Площадь: 256.00м2
п. Ушаково, Береговая ул
13 990 000
загрузка карты...
Описание
Дата публикации: 25.02.2026 г. 22 просмотра
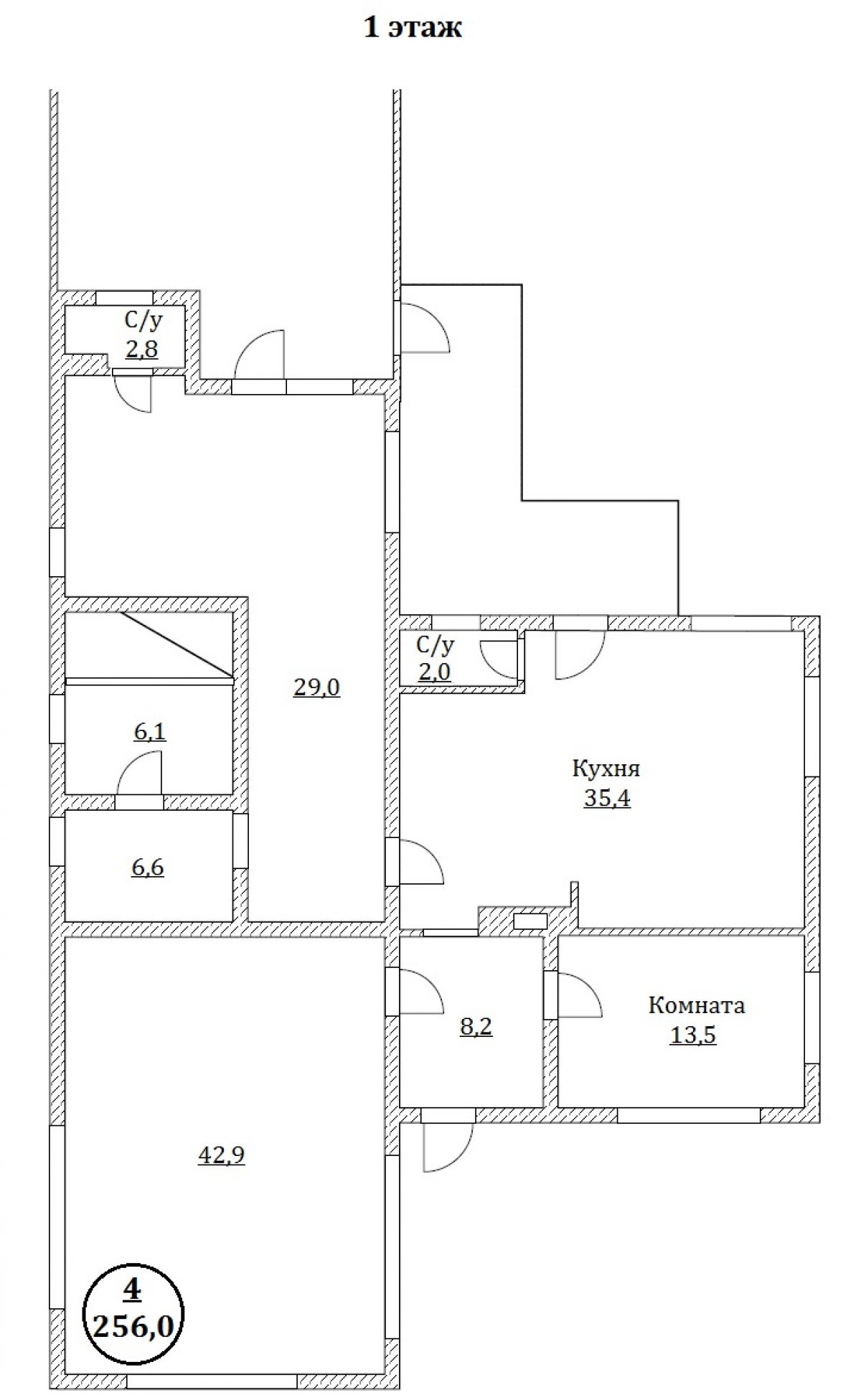
Уютный дом для комфортного проживания семьи, расположен в живописном месте, на берегу реки Прохладной, в пос. Ушаково ( Гурьевский р-н) Дом 2012 года постройки, общей площадью 256 кв.м. На 1 этаже расположены кухня-гостиная с камином, кабинет, бильярдная, тренажерный зал, баня, с\у, просторная закрытая веранда с зоной барбекю; на 2 этаже-три просторные спальни, оборудованные с\у., гардеробные. Дом построен из керамического блока, фундамент- монолитный, железобетонный, межэтажные перекрытия – железобетонные, кровля – мягкая черепица. Дом подключен ко всем коммуникациям: электричество- 15 кВт 380V , вода -скважина, канализация-септик, отопление газовое автономное . По первому этажу смонтирована система «теплый пол» Земельный участок-9.5 сот, огорожен, благоустроен. Оборудована терраса с навесом и летней кухней. Во дворе вымощена парковка на несколько автомобилей, так же построен гараж для водного транспорта со спуском в воду. В шаговой доступности находятся магазины, остановка общественного транспорта. Номер объекта в базе 158892.Звоните!
Расположение
Населенный пункт п. Ушаково
Улица Береговая ул
Характеристики
Тип недвижимости Дом
Тип дома
Количество комнат 4.00
Площадь 256.00
Этажность 2
Наличие подъездных путей 1
Площадь участка 9.50
INTRUM_ID 158892
Материал перекрытий Железобетонные
Район области Гурьевский р-н
Целевое назначение земли индивидуальное жилищное строительство
Ремонт Серый ключ
Отопление Автономное отопление
Мощность Электроснабжения 16 кВт
Риелтор
Специалист по работе с недвижимостью
Или оставьте свой номер и специалист вам перезвонит
Я согласен на обработку персональных данных