Ленинский проспект 30а, БЦ "Калининград Плаза" 2й этаж
Поиск
Таунхаус; Секция, 255.00 м², 3.00 сот.

Таунхаус; Секция, 255.00 м², 3.00 сот.

Площадь: 255.00м2
г. Калининград, Ленинградский, Куйбышева ул
21 400 000
загрузка карты...
Описание
Дата публикации: 25.02.2026 г. 22 просмотра
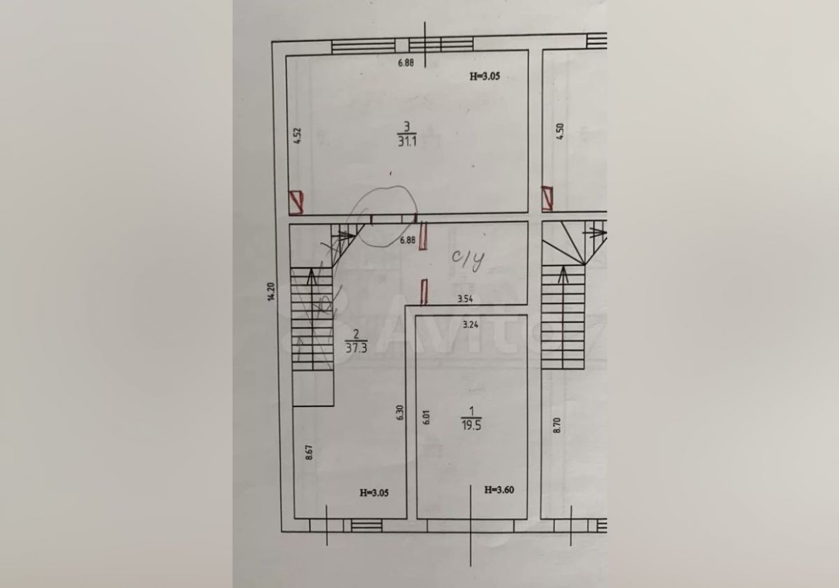
Продается Продается 3х-уровневый коттедж 255 кв.м с Автономным (газовым) отоплением. Живописный зелёный район, вокруг жилые особняки, коттеджи, солидные соседи. Земельный участок 3 сотки в собственности. Удобная транспортная развязка, 15 мин до моря, 5 мин до центра города на транспорте. Отличная инфраструктура: асфальтированные дороги, магазины, супермаркеты, школы и детские сады. Огороженная территория, 5 комнат, 3 с/у. Планировка: 1 уровень – холл, просторная кухня ,зал с выходом на террасу ,подсобные помещения, гостевой санузел, 2 уровень – 2 изолированные комнаты, ванная комната. 3 уровень - 2 изолированные комнаты ,2 гардеробные, санузел. Коттедж построен в 2017 году из качественных стройматериалов, на первом и втором этаже высота потолков 3 метра на третьем 3.20 метра, крыша из керамической черепицы, подогрев пола, установлен газовый котел. Все коммуникации , центральная вода, автономное газовое отопление, центральная канализация, интернет. Документы готовы к продаже, 1 собственник. Звоните!!!!!!
Расположение
Город г. Калининград
Район Ленинградский
Улица Куйбышева ул
Характеристики
Тип недвижимости Таунхаус; Секция
Тип дома
Количество комнат 5.00
Площадь 255.00
Год постройки/сдачи 2017
Этажность 3
Наличие подъездных путей 1
Наличие разрешения на строительство 1
Площадь участка 3.00
INTRUM_ID 156572
Район области Не указан
Целевое назначение земли индивидуальное жилищное строительство
Ремонт Серый ключ
Санузел 2 санузла и более
Отопление Автономное отопление
Риелтор
Специалист по работе с недвижимостью
Или оставьте свой номер и специалист вам перезвонит
Я согласен на обработку персональных данных