Ленинский проспект 30а, БЦ "Калининград Плаза" 2й этаж
Поиск
Дом, 350.00 м², 9.00 сот.

Дом, 350.00 м², 9.00 сот.

Площадь: 350.00м2
п. Большое Исаково, Елистратова ул
33 000 000
загрузка карты...
Описание
Дата публикации: 25.02.2026 г. 25 просмотров
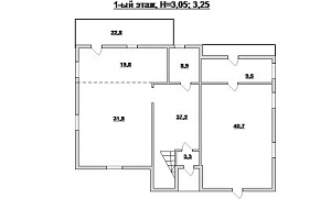
Предлагается к продаже просторный коттедж общей площадью 350 м² в тихом посёлке Большое Исаково 2016 года постройки. Полностью отремонтированный и готовый к заселению. На первом этаже расположен большой холл, гараж на две машины с котельной, санузел и большая кухня-гостиная с выходом на остеклённую веранду площадью 23 м² с тёплым полом и камином. На второй этаж ведёт лестница, изготовленная из натурального дерева ручной работы. Он располагает двумя спальнями, кабинетом, тренажерным залом 40 м², а также совмещённым санузлом. При продаже остаются мебель, предметы интерьера и техника! Вся улица застроена, территория огорожена, выведена ливневая канава. Скважина на 86 метров с дополнительной очисткой. Материал стен - керамоблок. Номер в базе 98160.
Расположение
Населенный пункт п. Большое Исаково
Улица Елистратова ул
Характеристики
Тип недвижимости Дом
Тип дома
Количество комнат 4.00
Площадь 350.00
Год постройки/сдачи 2014
Этажность 2
Наличие строений на участке 1
Наличие подъездных путей 1
Наличие разрешения на строительство 1
Площадь участка 9.00
INTRUM_ID 98160
Материал перекрытий Монолитные
Район области Гурьевский р-н
Целевое назначение земли индивидуальное жилищное строительство
Ремонт Евроремонт
Кадастровый номер участка 39:03:020005:227
Санузел 2 санузла
Отопление Газ
Водоснабжение Скважина
Вид канализации Септик
Риелтор
Специалист по работе с недвижимостью
Или оставьте свой номер и специалист вам перезвонит
Я согласен на обработку персональных данных