Ленинский проспект 30а, БЦ "Калининград Плаза" 2й этаж
Поиск
Дом, 180.00 м², 3.00 сот.

Дом, 180.00 м², 3.00 сот.

Площадь: 180.00м2
п. Малое Васильково, Абрикосовая ул
11 900 000
загрузка карты...
Описание
Дата публикации: 25.02.2026 г. 26 просмотров
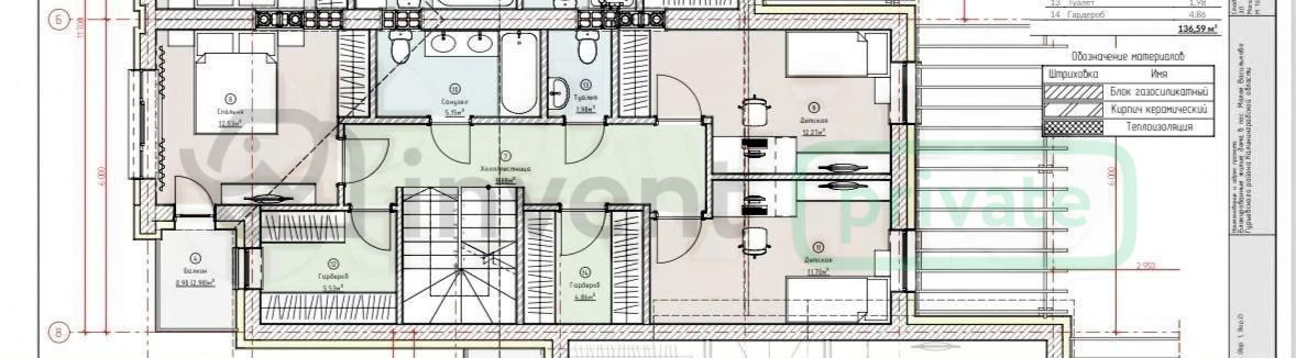
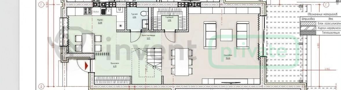
КАЛИНИНГРАДСКАЯ ОБЛ., ГУРЬЕВСКИЙ МУНИЦИПАЛЬНЫЙ ОКРУГ, ПОС. МАЛОЕ ВАСИЛЬКОВО, АБРИКОСОВЫЙ ПЕР., 22 О ДОМЕ Продается просторный двухэтажный таунхаус (фактическая площадь 150 м² + 30 м² мансарды) в кирпичном доме 2024 года постройки. Это «чистый лист» для создания дома вашей мечты без переплаты за чужой ремонт. Планировка: 1 этаж — прихожая, кухня, гостиная и санузел; 2 этаж — три спальни, два гардеробных помещения и второй санузел. Возможна свободная перепланировка под ваши нужды. Технологии: Стены из керамического блока 380 мм (идеальный микроклимат), плиты перекрытия, утепленный фасад (80 мм) с декоративной штукатуркой и надежная фальцевая кровля. 3 ключевых преимущества дома: Премиальные материалы и теплоэффективность: Керамический блок толщиной 38 см в сочетании с профессиональным утеплением фасада гарантирует тишину, отсутствие сквозняков и минимальные счета за отопление зимой и прохладу летом. Полный городской комфорт в своем доме: Все центральные коммуникации уже подключены и работают: магистральный газ, центральное водоснабжение и канализация. Никаких скважин, септиков и ограничений по расходу воды. Свобода творчества и выгода: Дом продается в состоянии «под финишную отделку». Вы не платите за ремонт, который мог бы вам не понравиться, а сразу создаете интерьер под свой вкус и бюджет. Плюс возможен обмен с вашей доплатой. ЛОКАЦИЯ Малое Васильково — один из самых престижных и близких к городу районов Гурьевского округа. Близость к центру: Всего 3 км от Калининграда. Вы живете за городом, но тратите на дорогу до работы или учебы считанные минуты. Развитая инфраструктура: Район полностью обжит: рядом школы, детские сады, супермаркеты, аптеки и остановки общественного транспорта. Экология и статус: Тихий переулок (Абрикосовый) в окружении новой качественной застройки. Чистый воздух и спокойные соседи. Транспортная доступность: Удобные выезды на основные магистрали, отсутствие пробок, характерных для спальных районов города. Гостевые парковочные места прямо напротив дома. Ликвидность: Недвижимость в этом районе всегда в цене благодаря удачному расположению и наличию всех центральных коммуникаций (газ, вода, канализация). ???? Звоните собственнику прямо сейчас! Не упустите шанс создать дом своей мечты в лучшем районе области — запишитесь на просмотр сегодня!
Расположение
Населенный пункт п. Малое Васильково
Улица Абрикосовая ул
Характеристики
Тип недвижимости Дом
Тип дома
Количество комнат 4.00
Площадь 180.00
Этажность 2
Площадь участка 3.00
INTRUM_ID 230986
Район области Гурьевский р-н
Целевое назначение земли индивидуальное жилищное строительство
Ремонт Требует ремонта
Отопление Газ
Риелтор
Специалист по работе с недвижимостью
Или оставьте свой номер и специалист вам перезвонит
Я согласен на обработку персональных данных